カーポートと機能門柱でオーソドックスな新築ベーシック オープン外構

プラン内容 No.3298

※データは見積当時のものです

見積参考価格
300 万円
工事面積
151m 2
工事種別
新築外構
地形
四角
方位
車の台数
2台
登録日
2024-11-18

イメージパース・図面

コメント

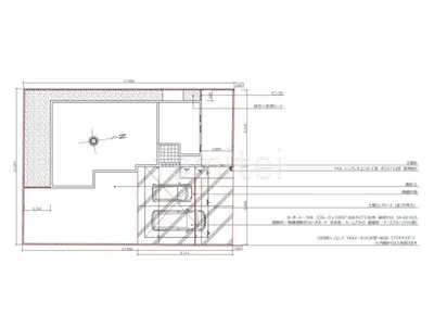
駐車スペースには2台用カーポート YKKAP エフルージュFIRSTを採用し、広々とした駐車スペースを確保し、車を雨や紫外線から守ります。 また、足元は土間コンクリート仕上げとすることで、耐久性と清掃のしやすさを両立し、日常の使い勝手を大きく向上しました。 玄関まわりにはコンパクトなデザインの機能門柱 YKKAP シンプレオポストユニット1型を設置し、利便性を高めました。