カーポートと手すりで使い勝手を向上した外構リフォーム
プラン内容 No.3340
※データは見積当時のものです
- 見積参考価格
- 490 万円
- 工事面積
- 40m 2
- 工事種別
- リフォーム外構
- 地形
- 角地
- 方位
- 南
- 車の台数
- 2台
- 登録日
- 2025-08-07
イメージパース・図面






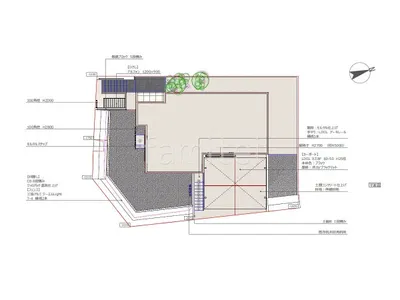
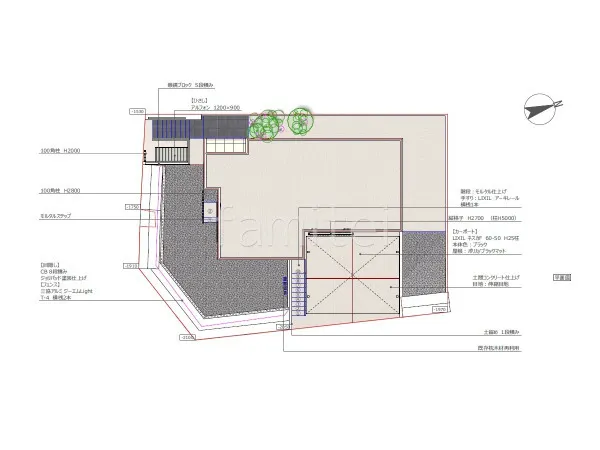
コメント
石積みを解体し、敷地をフラットに整えたうえで土間コンクリートを施工し、2台用カーポート LIXIL ネスカFを設置することで、車を雨風から守る使い勝手の良い駐車スペースに仕上げました。 階段には手すり LIXIL アーキレールの手すりを設け、安全性を向上しました。 敷地境界には塗り壁門塀と形材フェンス 三協アルミ ジーエムLightを組み合わせ、重厚感のある外観に。 門まわりにはひさし アルフィンを設置し、自転車などを雨から保護します。






