ウッドデッキとテラス屋根でリラックス!お庭リフォーム工事
プラン内容 No.3339
※データは見積当時のものです
- 見積参考価格
- 168 万円
- 工事面積
- 53m 2
- 工事種別
- リフォーム外構
- 地形
- 四角
- 方位
- 東
- 登録日
- 2025-08-09
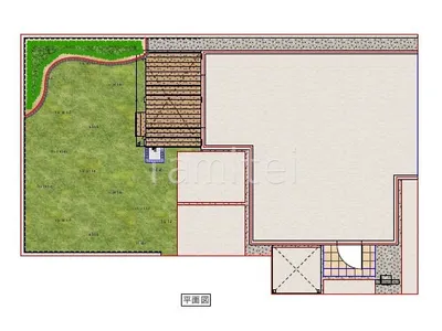
イメージパース・図面







コメント
お庭の砂利を撤去し、下地を整えたうえで人工芝を敷き、年間を通してお手入れがしやすく快適に過ごせるスペースを作りました。 さらに、ウッドデッキ LIXIL 樹ら楽ステージと1階用テラス屋根 YKKAP ソラリアFを新設し、家族や友人とすごすリラックス空間に。 周囲には目隠しフェンス F&F ニコボードを設置することで、プライバシーとデザイン性を両立しました。 また、既存の機能門柱を撤去し、大判タイル タカショー セラレバンテのタイル門柱を新たに設置し、モダンな印象に仕上げました。







